Používame cookies

Súbory cookie a ďalšie technológie sledovania používame na zlepšenie vášho zážitku z prehliadania našich webových stránok, na to, aby sme vám zobrazovali prispôsobený obsah a cielené reklamy, na analýzu návštevnosti našich webových stránok a na pochopenie toho, odkiaľ naši návštevníci prichádzajú. Viac info

NA PREDAJ 5-izbový poschodový byt + KK + záhrada + pivnica + 2 park. miesta, Dubová ul. - N. Dubnica

  • Exkluzívna ponuka

Popis nehnuteľnosti

Zdieľať na Facebooku

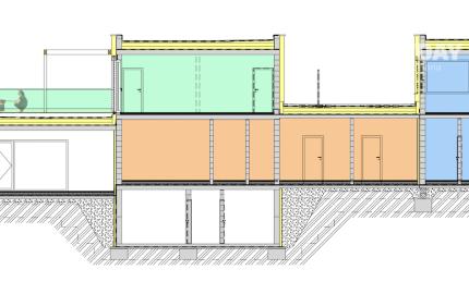
Ak hľadáte byt, v ktorom sa budete naozaj cítiť ako v rodinnom dome, ste na správnom mieste. Ponúkame Vám na predaj modernú novostavbu nadštandardného poschodového 5-izbového bytu s vlastnou záhradou, terasou a parkovaním. Byt je súčasťou obytného domu, ktorý je navrhovaný a realizovaný s prvkami energeticky pasívnej stavby.


Dom sa nachádza vo vyhľadávanej a zabývanej obytnej časti Dlhé diely v Novej Dubnici na Dubovej ulici, ktorej neprekonateľnou výhodou je blízkosť centra mesta a dostupnosť občianskej vybavenosti. Jeho súčasťou bude jedna nebytová a tri bytové jednotky, súkromné záhrady, spoločný dvor, časti a zariadenia, chodník a priestor pre parkovanie (2 miesta/byt).


Výstavbu od projektu po realizáciu zabezpečuje spoločnosť NETURE BAU spol. s r.o. s viac ako 30-ročnými skúsenosťami na slovenskom a nemeckom stavebnom trhu. Spoločnosť sa zameriava na kvalitne prevedené, funkčné a estetické detaily svojich stavieb. Dom je navrhnutý držiteľom certifikátu CPHD (certifikovaný dizajnér pasívnych domov) s viac ako 10-ročnými skúsenosťami s navrhovaním energeticky pasívnych stavieb a stavieb energetickej triedy A0.

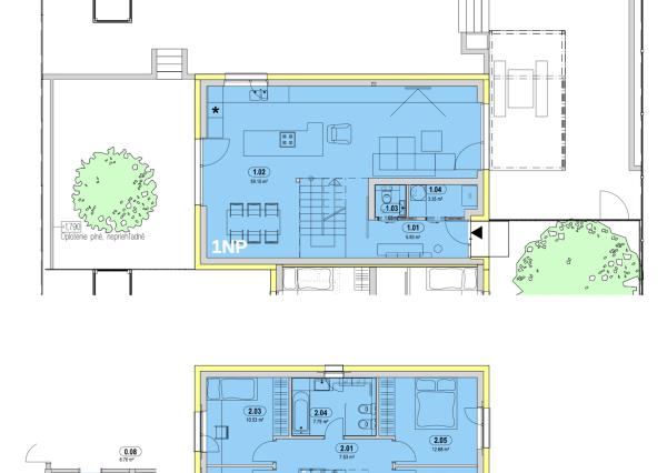
Dominantou 1. nadzemného podlažia bytu, ktorý má celkovú rozlohu 131,27 m2, je veľkorysá východne orientovaná obývacia izba spojená so západne orientovanou kuchynskou a jedálenskou časťou, z ktorej sa dá vyjsť na terasu s pergolou a záhradou s celkovou plochou až 249,6 m2. Okrem toho sa na prízemnom podlaží nachádza aj technická miestnosť a samostatná toaleta. K bytu prináleží priestranná pivnica s výmerou 9,6 m2 (súčasť spoločných priestorov).

Na 2. nadzemnom podlaží sa nachádzajú tri izby, pracovňa s vlastnou toaletou a priestranná kúpeľňa s vaňou, toaletou a bidetovou sprškou.


CENA BYTU v prevedení ŠTANDARD zahŕňa nasledovné:
- vstupné bezpečnostné dvere
- hliníkové okná s vnútornou izoláciou v ráme
- podlahy (podlahové kúrenie) v celom byte – vinylová podlaha (dub)
- biele obložkové bezfalcové interiérové dvere
- obklady, dlažba a sanita v kúpeľni a v toalete
- vnútorné omietky, podhľady a vymaľované na bielo
- silnoprúdové el. inštalácie so zásuvkami a vypínačmi
- elektrické exteriérové žalúzie
- riadené centrálne vetranie s rekuperáciou tepelnej energie s vysokou účinnosťou
- exteriérové terasy vrátane drevenej pergoly
- základná terénna úprava pozemku a okolia bytu
- finálna úprava pozemku, výsadba zelene a realizácia spevnených plôch a mobiliáru na spoločných častiach pozemku


TO NIE JE ZĎALEKA VŠETKO!!!
Viac detailných informácií týkajúcich sa technickej špecifikácie a vybavenosti stavby nájdete medzi fotografiami.


ENERGETIKA A SPOLOČNÉ SIETE V RÁMCI DOMU
- dom napojený na dostupnú technickú infraštruktúru:
- verejný strednotlakový plynovod
- verejný vodovod a splašková kanalizácia
- elektrické rozvody nízkeho napätia
- optická dátová sieť SWAN pre vysokorýchlostný internet, multimédiá a televíziu

- vykurovanie a príprava ohriatej pitnej vody v spoločnej centrálnej kotolni plynovým kotlom + zásobníkový systém ohriatej pitnej vody s podporou solárnej energie
- riadené vetranie s vysokoúčinnou rekuperáciou tepelnej energie je súčasťou každého bytu samostatne

- riešenie tzv. „modrej infraštruktúry“:
na pozemku spoločná vŕtaná studňa pre rozvod úžitkovej vody (na splachovanie a polievanie) a vsakovacie podzemné zariadenie na vsakovanie dažďových vôd

- inteligentná elektroinštalácia a automatizácia v spoločnej časti domu (digitálny diaľkový odpočet energií, prehľad o spotrebe a pod.)


Ak Vás daná nehnuteľnosť zaujala, neváhajte nás kontaktovať, radi Vám poskytneme viacej informácií.


SLUŽBY
V cene je taktiež zahrnutý kompletný servis spojený s ponukou, predajom a prevodom nehnuteľnosti:
- vyhotovenie kúpnych zmlúv a návrhov na vklad kúpnych zmlúv právnikom
- uhradenie správneho poplatku za návrh na vklad kúpnej zmluvy do katastra nehnuteľností
- vybavenie financovania hypotekárnym úverom s najlepšími finančnými podmienkami na trhu
- prípadne ďalšie dokumenty potrebné ku kúpe nehnuteľnosti

Vlastnosti

Status:
aktívne
Vlastníctvo:
osobné
Plocha predzáhradky:
250 m2
Plocha pozemku:
350 m2
Typ zeme:
rovina
Teritórium:
Intravilán
Úžitková plocha:
141 m2
Stav:
novostavba
Počet izieb:
5
Energetický certifikát:
A
Energetická náročnosť budovy:
Nízkoenergetický
Terasa:
áno
Pivnica:
áno
Rok výstavby:
2025
Rok kolaudácie:
2026
Počet poschodí od prízemia vyššie:
2
Terasa plocha:
15 m2
Počet terás:
1
Pivnica plocha:
10 m2
Počet pivníc:
1
Inžinierske siete:
áno
Voda:
áno
Elektrika:
áno
Plyn:
áno
Kanalizácia:
áno
Voda - na pozemku:
áno
Voda - na pozemku - vodný zdroj:
áno
Voda - na pozemku - studňa:
áno
Elektrika - na pozemku:
áno
Elektrika - na pozemku - 230 V:
áno
Elektrika - na pozemku - 380 V:
áno
Plyn - na pozemku:
áno
Kanalizácia - na pozemku - kanalizácia:
áno
Vykurovanie - podlahové:
áno
Vykurovanie - lokálne:
áno
Internet:
áno
Optická sieť:
áno

Hypotekárna kalkulačka

349 900 €
Ulica: Dubová
Obec: Nová Dubnica
Okres: Ilava
Kraj: Trenčiansky kraj
Druh: Domy
Typ: Predaj
Typ domu: Rodinný dom

Ondrej Straka

Lokalita: Nová Dubnica

Radi Vám poradíme